Smart Space Planning Ideas for Cambridge Homes


Smart space planning can transform Cambridge homes without the need for major renovation or structural changes. Through thoughtful interior design, improved layouts, bespoke storage, and better spatial flow, homes can feel calmer, more functional, and better suited to modern living while making the most of the existing architecture.


Homes in Cambridge carry a quiet complexity. From Victorian terraces off Mill Road to 1930s semis in Newnham, from post‑war homes in Chesterton to new‑builds in Trumpington and the surrounding Cambridgeshire villages — every property holds both potential and constraint. And yet, many homeowners assume that the only path to a better home is a major renovation: knocking down walls, extending, reconfiguring plumbing, or committing to months of disruption.

But the truth is gentler, and far more empowering.

Space planning — when done by someone who understands architecture, flow, proportion, and human behaviour — can transform a home long before a builder steps through the door. It is the invisible craft that makes a room feel calm, logical, and effortless. It is the difference between a home that works and a home that frustrates. And in many cases, it is the difference between spending tens of thousands on construction… or not needing to at all.

This Insight explores how thoughtful space planning can reshape Cambridge and Cambridgeshire homes without major construction, and why expert guidance can save homeowners money, time, and emotional energy.

Why Space Planning Matters More Than Most People Realise

Most people think of interior design as colours, furniture, and finishes. But true design begins long before any of that — with the bones of the space.

Space planningis the architectural layer of interior design. It asks:

How should this room function?

How do people move through it?

Where does the eye naturally travel?

What is the emotional tone of the space?

What is the most efficient, elegant way to use every millimetre?

When done well, space planning solves problemsclients didn’t know they had. It reveals opportunities hidden in plain sight. It creates clarity where there was confusion. And it often prevents unnecessary structural work.

A well‑planned room feels intuitive. You don’t notice the design — you simply feel at ease.

The Cambridge Context: Why Local Homes Benefit From Intelligent Reconfiguration

Cambridge and its surrounding villages — Grantchester, Girton, Histon, Comberton, Great Shelford, and beyond — have their own architectural quirks. Understanding them is essential to designing well.

Victorian terraces (Petersfield, Romsey, Newnham)

Beautiful but narrow, often with long corridors, small kitchens, and awkward rear extensions.

1930s semis (Cherry Hinton, Trumpington, Arbury)

Generous plots but inefficient internal layouts, with dining rooms that feel disconnected from kitchens.

Post‑war homes (Chesterton, King’s Hedges)

Boxy rooms, low ceilings, and circulation that wastes space.

New‑builds (Eddington, Cambourne, Northstowe)

Clean but often lacking soul, with proportions that don’t always support modern living.

Each of these property types benefits enormously from expert space planning. A designer who understands Cambridge’s housing stock can see what the home wants to be — and how to achieve it with minimal intervention.

When Reconfiguration Is Enough (and Often Better)

Not every home needs an extension. In fact, many don’t.

Here are common scenarios where reconfiguration alone creates a dramatic transformation:

1. Rebalancing proportions

A room can feel “wrong” simply because furniture is fighting the architecture. Adjusting scale, placement, and circulation can make the space feel twice as large.

2. Reclaiming dead corners

Many Cambridge homes have unused pockets — alcoves, awkward junctions, or transitional spaces that could become storage, seating, or functional zones.

3. Improving flow

Sometimes the issue isn’t size, but movement. Redirecting circulation can make a home feel calmer and more logical.

4. Rethinking entry points

A door moved by just a few centimetres — or simply reframed visually — can unlock an entire room.

5. Layering function

A dressing room becomes a workspace. A landing becomes a reading nook. A kitchen gains a hidden pantry through clever joinery.

These changes require expertise, not demolition.

When Structural Changes Are Worth Considering

There are moments when construction is the right choice — but only after a strategic assessment.

Structural changes may be recommended when:

A room is fundamentally too small for its intended purpose

The circulation is severely compromised

Natural light is blocked by outdated partitions

The home’s long‑term value would significantly increase with an extension

The client’s lifestyle requires a new spatial configuration

The key is discernment. Not every wall needs to come down. Not every extension adds value. And not every frustration requires a builder.

This is where expert space planning becomes invaluable.

 

In many cases, the biggest transformation comes not from major construction, but from rethinking how a space is organised. This is where space planning in interior design plays a crucial role, allowing layout, flow and functionality to be resolved before any structural changes are made.

 

Case Study: A Cambridge Home Seeking Clarity

Front elevation of a traditional Cambridge home on Mawson Road (CB1), featuring a symmetrical brick facade, bay window, and arched entrance. This property was the focus of a space planning study exploring layout improvements with minimal structural intervention. A quiet residential street near central Cambridge, Mawson Road reflects the architectural character and spatial constraints typical of the area — making it an ideal case study for thoughtful reconfiguration

Case Study: A Cambridge Home Seeking Clarity

A recent project on Mawson Road, Cambridge (CB1) illustrates this perfectly.

The client approached us, unsure whether to reconfigure the existing layout or commit to a more substantial renovation.

The home — a typical Cambridge property with charming bones but awkward flow — felt disjointed. Rooms didn’t connect emotionally. Storage was insufficient. Circulation was inefficient. And the client felt overwhelmed by the idea of making the wrong decision.

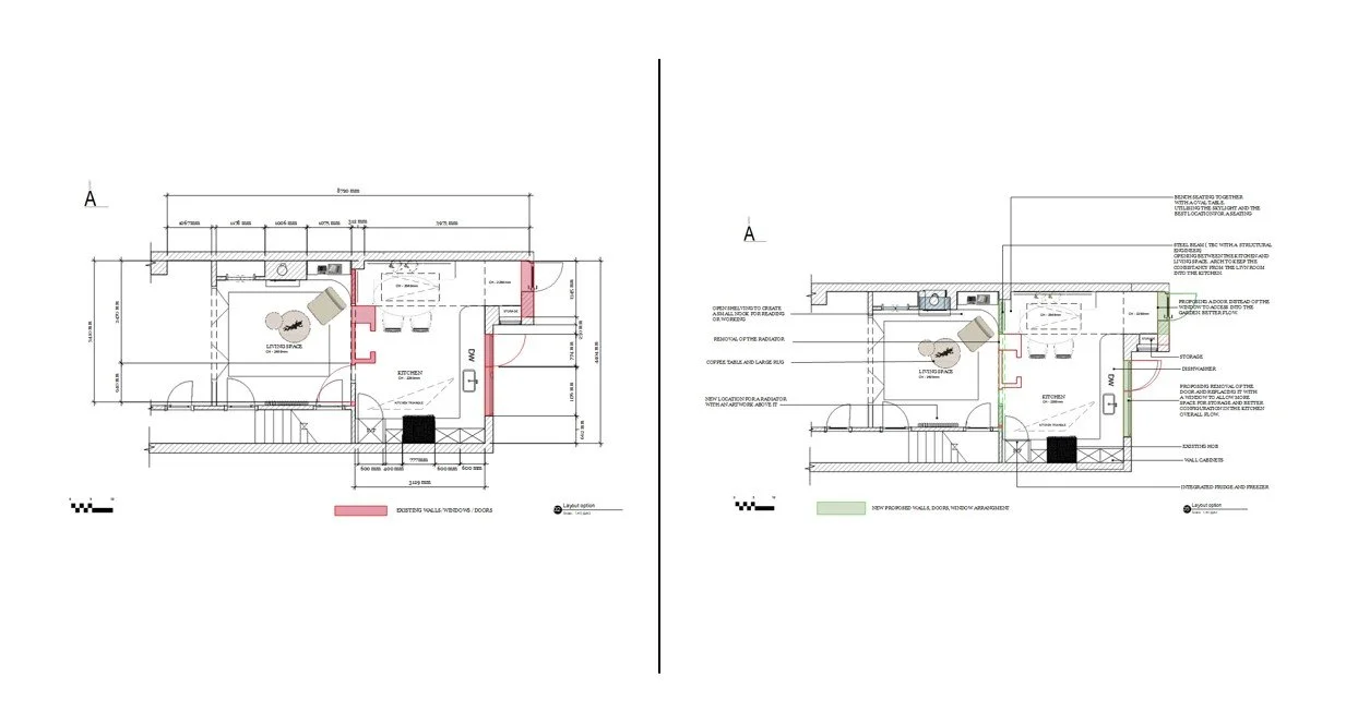
Mawson-Road-Cambridge-space-planning-initial-layout-study

Initial layout study for a Cambridge home on Mawson Road (CB1), exploring small structural changes and spatial reconfiguration. This first option proposes reinstating original openings, relocating key elements, and introducing integrated storage and garden access — all without major construction. A strategic exercise in proportion, clarity, and architectural sensitivity.

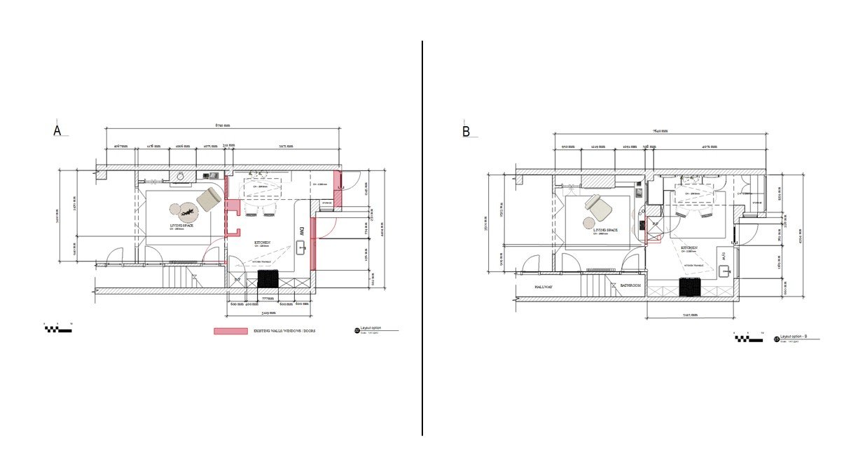
Existing layout and Option B for a Cambridge home on Mawson Road (CB1), exploring spatial improvements without structural changes. This study focuses on reconfiguring the natural flow between kitchen, living space, and hallway — enhancing usability, proportion, and connection. Option B retains the architectural structure while repositioning key elements to create a more intuitive and elegant layout.

My role was to bring clarity.

Step 1: Understanding how they lived

Before touching the floor plan, I listened. How did they use the space What frustrated them What mattered most

Step 2: Analysing the existing layout

I studied the proportions, the light, the circulation, and the architectural constraints.

Step 3: Presenting multiple pathways

I created several configurations:

• Option A: Minimal intervention — rebalancing furniture, improving flow, and adding bespoke storage.

• Option B: Moderate reconfiguration — adjusting room functions and refining circulation.

• Option C: Structural changes — opening key areas to improve light and connection.

Step 4: Guiding the decision

Through drawings, analysis, and conversation, the client realised that Option B delivered everything they needed — without the cost, disruption, or risk of construction.

The result was a home that felt calmer, more spacious, and more aligned with their lifestyle. And they saved thousands by avoiding unnecessary building work.

This is the power of expert space planning.

Architectural sections and white 3D model for a Cambridge home on Mawson Road (CB1), illustrating spatial layout, furniture placement, and lighting strategy. This visual study explores bench seating options, sectional proportions, and the interplay of light and shadow across the reconfigured interior. A calm, intentional approach to space planning — balancing technical clarity with poetic resolution.

How Space Planning Protects Your Investment

For high‑net‑worth clients — and for anyone who values their home — space planning is not a luxury. It is a form of financial intelligence.

1. Avoiding costly mistakes

Poorly planned renovations are expensive to undo.

2. Increasing long‑term value

A well‑designed layout is one of the strongest predictors of property value.

3. Making the home feel larger

Perceived space is often more important than actual square footage.

4. Designing for real life

A home that supports your routines feels luxurious, even without structural change.

The Emotional Impact: Calm, Clarity, Confidence

A well‑planned home feels different. It feels intentional. It feels supportive. It feels like it understands you.

Space planning is emotional architecture — the quiet work that shapes how you live, breathe, and move through your day.

When a home is thoughtfully configured, you feel it immediately. There is a sense of ease. A sense of belonging. A sense of calm.

A Gentle Invitation

If you are planning a High‑End Residential Design or Bespoke Kitchen Design project in Cambridge, the Cambridgeshire villages, St Neots, Sandy, Biggleswade, Wyboston, Caldecote, Comberton, Gamlingay, Royston, Hitchin, Welwyn Garden City, or London, we invite you to book a confidential Discovery Call with our Creative Director.

Begin your narrative of place, purpose, and poetic living with Pinterior.space — whether you’re along Grange Road or anywhere across the Cambridge region.

If you’re searching for a Cambridgeshire Interior Designer who blends practical solutions with poetic detail, this is where the journey begins.

Ready to design with intention? Book your free consultation today.

You can explore more here:

my [Services → /services]

my [About page → /about]

my [Bathroom Concept Boards → /concept-boards]

 my [Recent Articles → /articles]

• my [Home page ]

• my [Work with Me → /work with me]

Previous
Previous

Bespoke Joinery Ideas for Contemporary Cambridge Homes

Next
Next

Bespoke Kitchen Design Ideas for Cambridge Homes