How to Layer Lighting Like a Designer: Creating Depth, Warmth and Atmosphere

Lighting is one of the most influential elements in interior design, yet it is often treated as an afterthought. A well-designed lighting scheme can completely transform how a space feels, adding depth, warmth and clarity. In this guide, I explain how to layer lighting effectively, based on residential projects across Cambridge and London, helping you create a home that feels both functional and atmospheric.



By an interior designer in Cambridge, London, and the surrounding villages

Lighting is the quiet force that shapes how a home feels. It influences mood, comfort, and even how we perceive colour and texture. A beautifully designed room in Cambridge or Welwyn Garden City can fall flat under harsh lighting, while a modest space in Letchworth or a Cambridgeshire village can feel warm and luxurious with the right layers of light.

Designers know that lighting is never an afterthought. It’s a plan — a logical, behavioural plan of how you live in your home.

This guide walks you through the principles a lighting interior designer uses every day, so you can create calm, functional, beautifully lit spaces of your own.

Flos pendant light above marble worktop in Gamlingay kitchen renovation near Cambridge

This image features a Flos pendant light suspended above a marble worktop in a Gamlingay kitchen renovation near Cambridge. The sculptural fixture provides general lighting while adding visual rhythm and elegance to the space. Paired with gold accents, natural foliage, and rich wood cabinetry, the light anchors the room’s calm, contemporary atmosphere. A refined example of how a lighting interior designer integrates function and form in Cambridgeshire homes.

 

Lighting should always be considered alongside the layout, as it directly responds to how a space is organised. Our guide on how to layer lighting like a designer explains this in more detail, while our approach to space planning in interior design ensures lighting, layout and flow work together cohesively.

 

1. Start With Function: The First Rule of Good Lighting

Before choosing a single lamp or fitting, consider how the room is used.

Function always comes first.

Every activity has a lighting requirement:

  • Reading → focused task light

  • Cooking → bright, shadow‑free functional light

  • Relaxing → warm, layered ambient light

  • Working → clear, even illumination

  • Dressing → flattering vertical light

Whether you’re designing a Victorian terrace in Cambridge or a new‑build in London, the logic is the same:
The activity determines the light. This is why lighting layout and electrical layout are inseparable. They are two sides of the same design decision.

Collage showing five lighting types in action: reading, working, dressing, cooking, and relaxing — each with tailored illumination for its function

This collage illustrates five distinct lighting setups, each designed to support a specific activity within the home. From focused task lighting for reading and dressing to warm ambient layers for relaxation, the image demonstrates how a lighting interior designer plans illumination based on behaviour and function. Ideal for homeowners in Cambridge, London, Welwyn Garden City, and surrounding villages seeking practical, elegant lighting solutions.

2. Break the Room Into Zones

A room is never one thing. It’s a collection of zones, each with its own purpose.

A living room might include:

  • a reading corner

  • a TV area

  • a conversation zone

  • a walkway

  • shelving or display lighting

A kitchen might include:

  • prep surfaces

  • cooking areas

  • dining space

  • ambient evening lighting

A bedroom might include:

  • bedside reading

  • dressing area

  • soft ambient light for winding down

A lighting interior designer assigns the right type of light to each zone, creating a layered, flexible atmosphere that adapts throughout the day.

3. The Three Layers of Light (Designer Edition)

Every well‑lit room uses a combination of:

Ambient Light

The general glow that fills the room.
Think ceiling lights, pendants, or soft diffused lamps.

Warm sculptural wall light by Ferm Living in a Shelford Cambridge living room, creating ambient mood lighting

This image showcases a sculptural wall light by Ferm Living, installed in a Shelford, Cambridge living room. The organically shaped fixture casts a warm, ambient glow across a textured wall, enhancing the room’s calm, contemporary atmosphere. Paired with natural materials and soft furnishings, the light serves as a mood-setting accent — a perfect example of layered lighting used by an interior designer in Cambridge to create emotional depth and visual comfort.

Task Light

Focused illumination for specific activities.
Reading lamps, under‑cabinet kitchen lighting, desk lamps.

De Marseille metal by Le Corbusier  wall light used as task lighting above a sofa in a Shelford Cambridge interior project.

This image features a De Marseille metal by Le Corbusier wall light installed above a sofa in a Shelford, Cambridge interior project. The adjustable black fixture provides focused task lighting, ideal for reading or evening calm, while its sculptural form adds a modern edge to the space. Set against a textured dark wall and paired with velvet and abstract cushions, the light enhances both function and atmosphere — a signature example of how a lighting interior designer balances practicality and style.

General Light

The everyday glow. Ceiling pendants, flush mounts, and large floor lamps that provide overall illumination.

General lighting sets the baseline for visibility and comfort. It’s what allows you to move through a space safely, see clearly, and feel at ease. When layered thoughtfully with task lighting and ambient warmth, it creates a home that feels balanced, calm, and intentional.

This image captures a Shelford, Cambridge living room designed with thoughtful general lighting. A central pendant and recessed ceiling lights provide balanced illumination across the space, enhancing comfort and visibility. The layered textures, abstract artwork, and natural materials create a calm, contemporary atmosphere. This example illustrates how a lighting interior designer utilises general lighting to support everyday living while maintaining warmth and elegance.

4. Bedroom Lighting: A Perfect Example of Function‑First Design

Bedrooms are often lit poorly — either too bright or too dim.
A designer starts with behaviour:

  • Do you read in bed

  • Do you want soft light for winding down

  • Do you prefer symmetry or flexibility

  • Do you want to control the lights from the bed

Then comes the practical question:
hard‑wired wall lights or plug‑in lamps

Hard‑wired wall lights

  • Clean, minimal, no cables

  • Perfect for reading

  • Can be wired to bedside switches

  • Ideal for a calm, hotel‑like feel

Plug‑in lamps

  • Flexible

  • Easy to change

  • Great for renters or period homes where rewiring is tricky

And then the most overlooked detail:
circuits and switching.

A good lighting plan considers:

  • two‑way switching (door and bedside)

  • dimmers for evening calm

  • separate circuits for ambient and task lighting

  • socket placement to avoid cable clutter

This is the logic that makes a bedroom feel effortless.

5. Wiring, Circuits, and the Comfort of Good Control

Lighting is not just about fittings — it’s about how you operate them.

A thoughtful electrical layout includes:

  • switches placed where your hand naturally reaches

  • circuits that separate functional and mood lighting

  • enough sockets in the right places

  • avoiding the “one big ceiling light” problem

  • planning for lamps, not just fixed lights

In older Cambridge homes, this often means working around existing wiring.
In new builds, it’s about adding personality and warmth to the standard developer layout.

“Whether you're working with a new‑build or retrofitting a period home, we offer lighting and electrical layout services to help you get it right — calmly, logically, and beautifully.”

Either way, the logic remains:


Lighting should support your behaviour, not fight it.

6. Bathroom Lighting: Safety First (IP Ratings Matter)

Bathrooms require special attention because of moisture and proximity to water.

A bathroom interior designer always checks IP ratings, which determine where a light can safely be installed.

  • Zone 0 (inside the bath or shower) → IP67

  • Zone 1 (above the bath or shower) → IP65

  • Zone 2 (around the bath/shower perimeter) → IP44

Beyond safety, bathroom lighting should be:

  • bright enough for grooming

  • flattering (avoid overhead shadows)

  • layered with wall lights or mirror lights

  • warm enough to feel inviting

Health and safety come first — but beauty follows closely behind.

Diagram showing bathroom electrical safety zones for lighting installation based on IP ratings

This diagram illustrates the electrical safety zones within a bathroom, highlighting where different types of lighting can be safely installed. Zones 0, 1, and 2 are defined by their proximity to water sources such as baths, showers, and sinks, each requiring specific IP-rated fittings. Used in interior design projects across Cambridge, London, and Cambridgeshire villages, this guide helps homeowners understand how lighting interior designers ensure compliance with health and safety standards while creating elegant, functional bathroom spaces.

7. Colour Temperature: Why Most Homes Feel “Off”

Colour temperature changes everything.

  • 2700K–3000K → warm, cosy, perfect for living rooms and bedrooms

  • 3000K–3500K → neutral, ideal for kitchens and bathrooms

  • 4000K+ → too cold for most homes, often used in offices

Mixing colour temperatures is one of the quickest ways to make a home feel disjointed.

A lighting interior designer keeps the palette consistent so the home feels calm and cohesive.

Visual chart showing eight light bulbs with different colour temperatures from warm glow to daylight

This image illustrates the spectrum of colour temperature across eight light bulbs, ranging from 2,000K warm glow to 5,500K daylight. Each bulb emits a distinct hue, transitioning from soft amber tones to crisp blue‑white light. Used in interior design projects across Cambridge, London, and surrounding villages, this guide helps homeowners understand how colour temperature affects atmosphere — from cosy bedrooms to bright kitchens. A lighting interior designer uses this scale to select bulbs that support comfort, clarity, and emotional tone.

8. A Simple Lighting Plan Anyone Can Follow

Here’s a designer‑approved formula:

  1. Identify the room’s main functions

  2. Break it into zones

  3. Assign the right type of light to each zone

  4. Plan circuits and switching for comfort

  5. Choose a consistent colour temperature

  6. Add dimmers wherever possible

This works for every room — from a compact Cambridge cottage to a London townhouse.

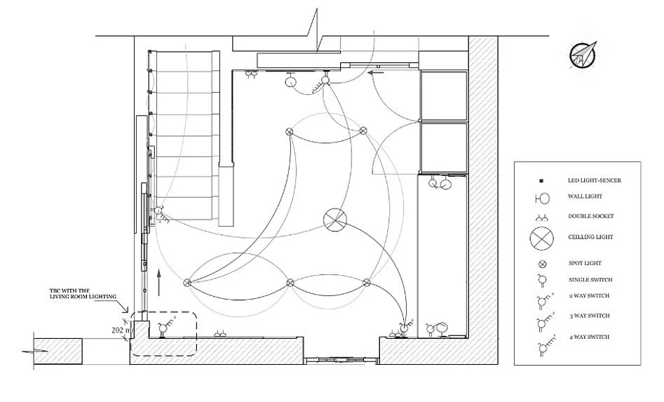
Architectural lighting plan showing circuits, switches, and light placements for a Shelford Cambridge interior.

This lighting plan illustrates the electrical layout for a Shelford, Cambridge interior project. It includes LED sensors, wall lights, ceiling lights, spotlights, sockets, and multi-way switches, all mapped with wiring paths and behavioural logic. Designed by a lighting interior designer, the plan reflects how circuits and switch placement support comfort, clarity, and natural movement through the home. A practical example of how thoughtful lighting design enhances everyday living.

“Whether you're working with a new‑build or retrofitting a period home, we offer lighting design services to help you get it right — calmly, logically, and beautifully.”

9. Common Lighting Mistakes (and How to Fix Them)

  • relying on one ceiling light

  • using bulbs that are too cool

  • too many spotlights

  • no dimmers

  • lamps that don’t actually illuminate anything

  • ignoring wiring logic

  • placing switches in awkward locations

Most of these can be corrected without major renovation.

10. Why Good Lighting Makes a Home Feel Calm and Complete

When lighting is done well, a home feels finished — not because it’s full of things, but because it’s full of intention.

Good lighting supports your routines, softens your evenings, and brings clarity to your mornings.
It makes a home feel warm, personal, and deeply comfortable.

Why Good Lighting Makes a Home Feel Calm and Complete

When lighting is layered with intention, a home begins to breathe. It supports your routines, softens your evenings, and brings clarity to your mornings. It’s not just about brightness — it’s about rhythm, comfort, and emotional tone. Whether you live in a Victorian terrace in Cambridge, a new-build in Welwyn Garden City, London or a quiet Cambridgeshire village, the right lighting plan can transform your space from functional to quietly extraordinary. If you’re ready to bring clarity, warmth, and designer logic to your home, I’d love to help.
Visit the store to begin your lighting journey — calm, considered, and completely tailored to you.

Previous
Previous

How to Make Your Home Feel Finished with Interior Design

Next
Next

Interior Design Ideas for Calm and Quiet Living Spaces